Please, fill out the form below with any questions you may have about this home or any of our listings.
**Images and prints are similar representations of this house and may include pictures of previous versions of this model we have built. Paul Fick Homes proudly builds unique features, rooflines, or dimensions into every home to avoid a “Cookie-cutter” feel in our developments.**
Split-Foyer Home located out at McGee Farms Addition on the West side of Sioux Falls near Benson Avenue and Marion Road.
2-Bedroom, 1-Bathroom, 3-stall Garage
Approximately 886 square foot on the Main Floor, 730+ Future square footage in the Lower Level, and approx. 730 square foot garage.
Kitchen Appliances included!
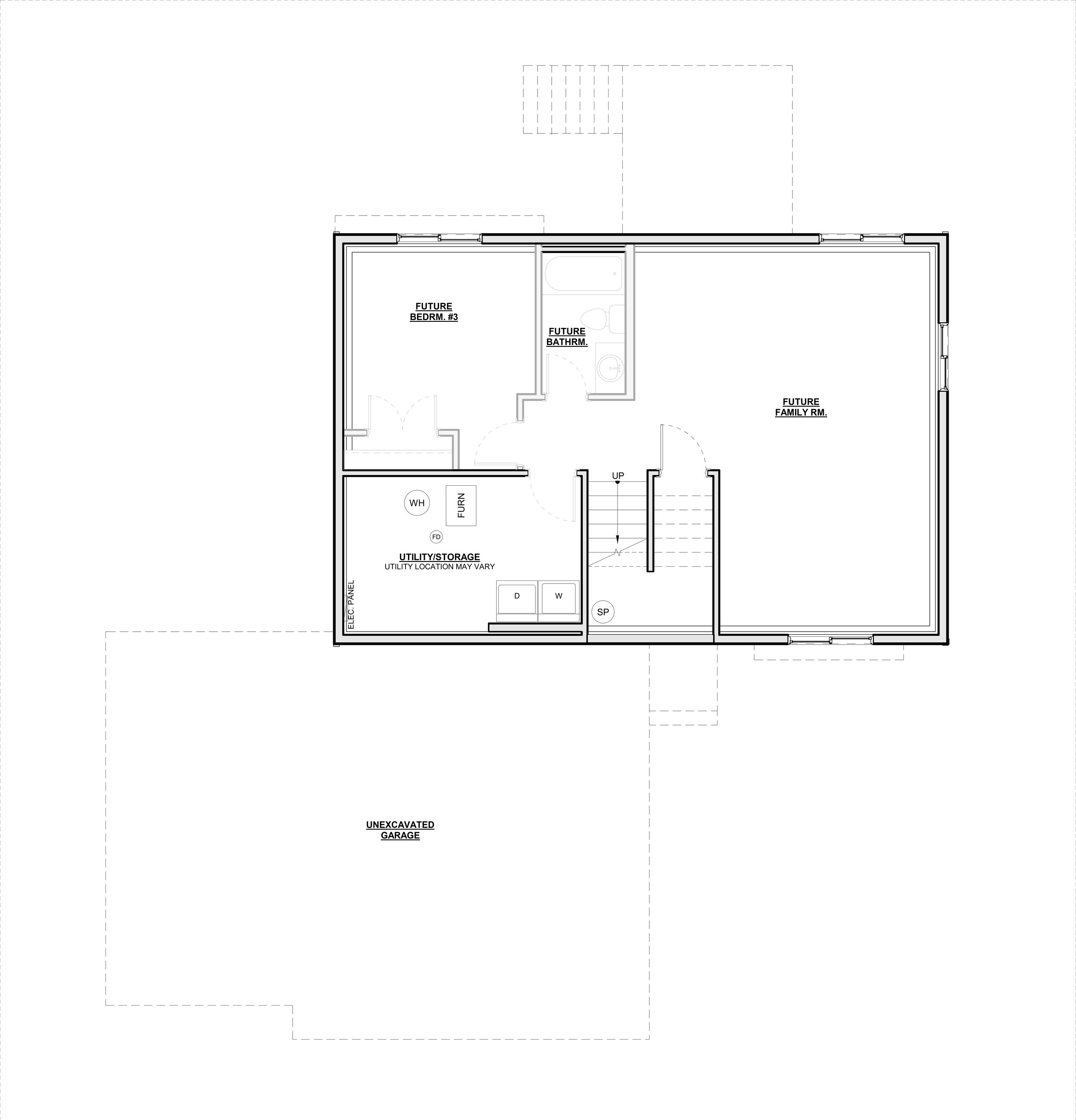
Unfinished basement has space for a Future Family Room, up to two Future Bedrooms, and a full Future Bathroom. Laundry Room is located in basement utility room.
This home is a Waubay Floor Plan
**Images and prints are similar representations of this house and may include pictures of previous versions of this model we have built. Paul Fick Homes proudly builds unique features, rooflines, or dimensions into every home to avoid a “Cookie-cutter” feel in our developments.**
Split-Foyer Home located out at McGee Farms Addition on the West side of Sioux Falls near Benson Avenue and Marion Road.
2-Bedroom, 1-Bathroom, 3-stall Garage
Approximately 886 square foot on the Main Floor, 730+ Future square footage in the Lower Level, and approx. 730 square foot garage.
Kitchen Appliances included!
Unfinished basement has space for a Future Family Room, up to two Future Bedrooms, and a full Future Bathroom. Laundry Room is located in basement utility room.
This home is a Waubay Floor Plan
Please, fill out the form below with any questions you may have about this home or any of our listings.